Проблема з вивозом сміття у Дніпрі існує вже не перший рік. Спочатку місцева влада винила у всьому кавуни. Однак наприкінці 2025 року мер Борис Філатов знайшов нових винуватців у переповнених сміттєвих баках - “ухилянтів” та переселенців.
Інформатор вже писав, що протягом 2025 року по місту встановлювали підземні сміттєві баки за мільйони гривень. Вони мали вирішити проблему зі сміттям. Окрім підземних контейнерів, які обійшлися бюджету у 12 тисяч доларів кожен, по різних адресах почали встановлювати захисні споруди, конструкції на сміттєвих баках. І нас це дуже зацікавило. Про це повідомляє Інформатор.
Ми відшукали численні тендери на благоустрій сміттєвих баків під час війни. Кожну таку закупівлю проводили окремим тендером. І вирішили показати декілька з численних закупівель, які вже завершені, адже відбулися у 2025 році. Хочемо лише відзначити, що про благоустрій сміттєвих зон писали провладні ЗМІ та міські депутати.




За задумом міської влади, облаштування зон для сміття таким чином має вирішити декілька нагальних проблем:
Один з депутатів зазначав, що проєкт реалізується в рамках програми міського голови Дніпра Бориса Філатова та Геннадія Корбана “Місто без околиць”. І у випадку його успіху, його масштабують. Судячи з кількості тендерів, проєкт дійсно мав шалений успіх.
Ми вирішили подивитися, що собою представляє благоустрій зон для збору сміття обрали для цього декілька локацій:
Благоустрій зон для сміття за цією адресою провели у дворі. На одній з калиток дбайливо повісили листок з попередженням, що одного бака нема. Калитка відчиняється і в середині стоять вже переповнені баки від сміття "ухилянтів та переселенців".






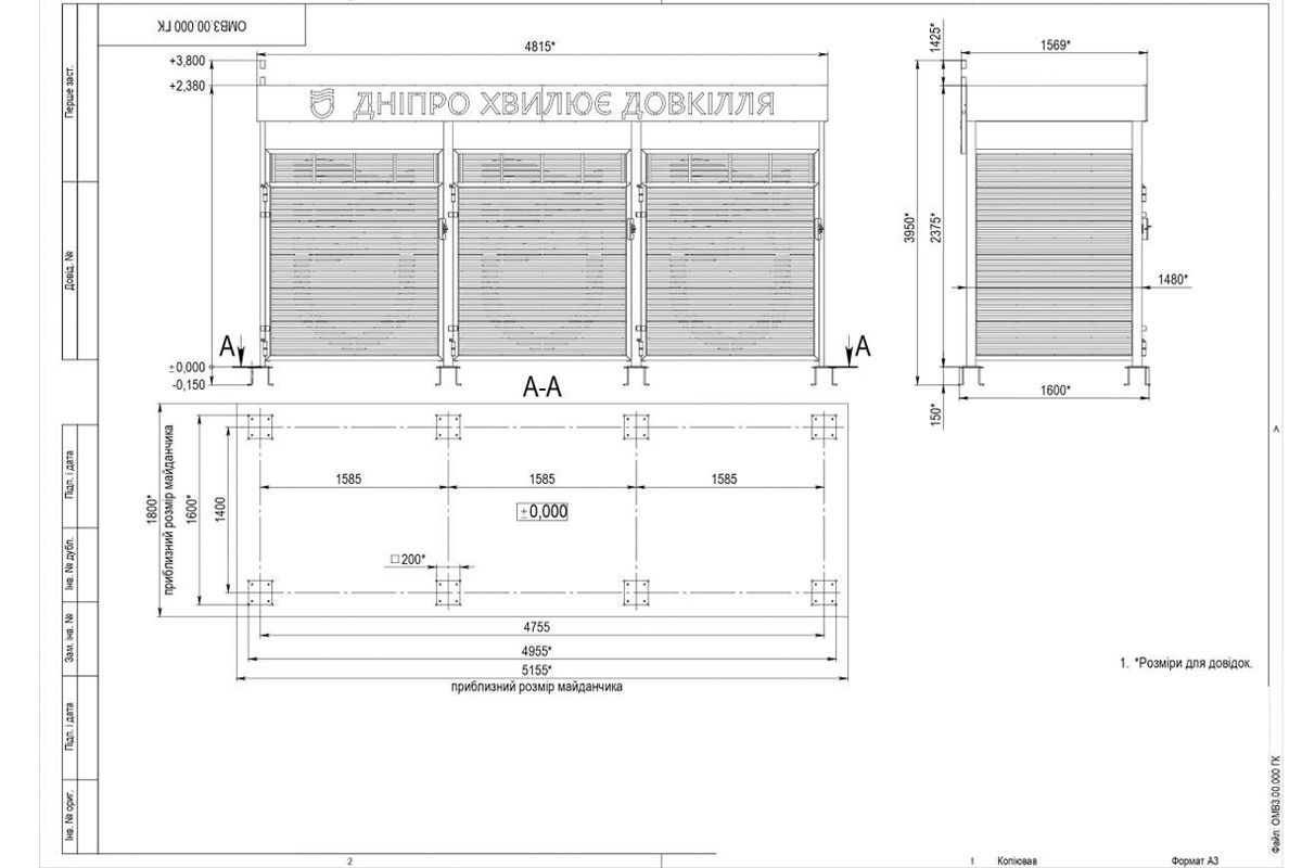
Благоустрій цієї зони коштував 920 тисяч гривень. Відповідний тендер ми відшукали на сайті Prozorro. Замовив послуги департамент з питань самоорганізації населення міськради Дніпра. У тендері брало участь два учасники. Попри дорожчу вартість робіт переможцем стало ТОВ "Норфолд".


Також в тендері зазначені найменування робіт, які мав виконати підрядник:

Подібний благоустрій провели в провулку Штабному, що на Набережній Перемоги. Однак роботи за цією адресою коштували значно дешевше, ніж на Сонячній Набережній. Згідно з тендерною документацією, вартість робіт складала 522 тисячі гривень. У перерахунку на долари, це близько 12 тисяч американських доларів.

Як у минулому випадку, було два учасники, і виграв той, який запропонував більше. Переможцем стало ТОВ "Прайс Ас Групп". Замовником робіт зазначений департамент з питань самоорганізації населення міськради Дніпра.


Однак ці конструкції, які мали врятувати від сміття, не допомагають. Ми побачили поряд з порожньою огорожею переповнені сміттєві баки.









Ремонт цієї зони коштував 270 тисяч гривень або 6 тисяч доларів. В торгах брав участь лише один учасник, який став переможцем, це ФОП "Глущук Тарас Олександрович". Замовником робіт зазначений департамент з питань самоорганізації населення міськради Дніпра.



Звісно, після прочитаного матеріалу у вас напевно виникло питання: “а з чого виготовляють ці конструкції?" І ми теж знайшли відповідь на це питання.

Конструкція складається з декількох секцій. Здебільшого використовується метал, лише деякі елементи оцинковані.



У підсумку ми можемо зазначити, що вартість робіт за трьома адресами суттєво відрізняється, і не зрозуміло від чого залежить ціна. Вартість робіт лише на трьох адресах склала 1 мільйон 712 тисяч гривень. Це близько 40 тисяч доларів. Проте таких тендерів, де значився благоустрій зони для сміття ми нарахували аж 78.
Нагадаємо, що мерія Дніпра під час війни на заміну піску в пісочницях збирається витратити 3 мільйони гривень. Ще ми повідомляли про те, що у Дніпрі планують витратити понад 2 мільйони гривень на медогляди працівників електротранспорту. Також у Дніпрі наприкінці року оголосили тендер на 4 мільйони на озеленення садочків.